
Căn hộ có diện tích 161 m2, tọa lạc tại một tòa chung cư thuộc quận Thanh Xuân (Hà Nội).
Gia đình chủ nhà có nhiều trẻ nhỏ nên cần không gian riêng tư và đủ rộng rãi cho các bé thoải mái nghỉ ngơi, nô đùa. Ngoài ra, dù vị trí tòa nhà ở nơi trung tâm đông đúc, gia chủ luôn mong muốn mỗi khi trở về có thể hòa mình vào góc nhỏ yên tĩnh, tránh xa cảm giác xô bồ.

KTS lựa chọn phong cách thiết kế lấy cảm hứng từ các nông trại châu Âu (Farmhouse) để tạo cảm giác yên bình, kết hợp với màu xanh pastel nhẹ nhàng.
Bên cạnh đó, các đường tròn được tận dụng tối đa vào mảng miếng trang trí và đồ nội thất, vừa nhằm mục đích trang trí vừa tăng tính an toàn cho trẻ khi sinh hoạt.

Khu vực sảnh ra vào được phân tách với phòng khách thông qua sự khác biệt về hệ sàn.

Phòng bếp – ăn liên thông nhưng vẫn đảm bảo riêng tư nhờ bố trí hệ cửa vòm.

Tone xanh pastel được sử dụng làm điểm nhấn khi kết hợp với màu trắng, nâu gỗ.

Hệ cửa vòm giúp tăng cảm giác nhẹ nhàng, mềm mại cho mỗi không gian chuyển tiếp.

Căn hộ có 4 phòng ngủ. Mỗi phòng đều phản ánh cá tính riêng của từng cá nhân, tạo cảm giác phong phú, không bị trùng lặp.

Mỗi phòng ngủ được thiết kế hệ tủ riêng theo chủ đề, màu sắc yêu thích của người sử dụng.

Các phòng ngủ dành cho trẻ nhỏ được tích hợp không gian nghỉ ngơi, học tập, vui chơi rộng rãi.

Hệ tủ kiêm bàn học với nhiều khoang tủ rộng, giúp không gian phòng luôn ngăn nắp.

Các phòng ngủ đều tràn ngập ánh sáng tự nhiên nhờ hệ vách kính lớn.

Phòng vệ sinh mang tone màu đồng nhất với không gian phòng ngủ.

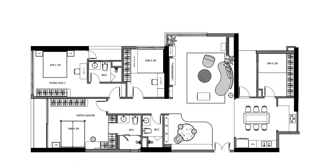
Mặt bằng bố trí nội thất.
Căn hộ được thi công trong 6 tháng, tổng chi phí bao gồm thiết kế và thi công hoàn thiện hạ tầng – nội thất khoảng 2 tỷ đồng.
Thu Hương
Chủ trì thiết kế: Lê Viết Dũng
Đơn vị thi công: Nammlab Interior
Ảnh: Cao Hòa

